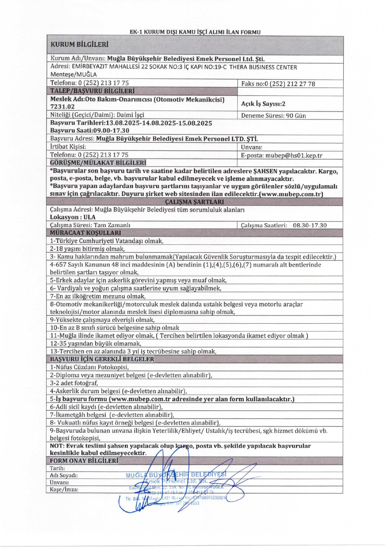
Muğla Büyükşehir Belediyesi 12 İşçi Alacak

Muğla Büyükşehir Belediyesi 12 İşçi Alacak. Son başvuru tarihi 15 ağustos 2025

Kaynak : İşkur
İlan Giriş : 11 Ağustos 2025 23:50, Son Güncelleme : 12 Ağustos 2025 01:49
Muğla Büyükşehir Belediyesi 12 İşçi Alacak
<>Maaş robotuna ulaşmak için tıklayınız

İlanlardan anında haberdar olabilmek için Android ve IOS uygulamalarımızı indirip bildirimleri açabilirsiniz. Memurlar.net'in Android uygulaması için tıklayınız.